Van cổng dao điện
Với phần lá chắn bằng inox, van dao phù hợp cho các môi trường khắc nhiệt như chuyền dẫn axit, các loại hóa chất ăn mòn…- Bảo hành 12 tháng . Giao hàng nhanh tiết kiệm thời gian.
Vật liệu chế tạo: gang, thép, inox – Áp lực làm việc PN10-PN16-PN25
Nhiệt độ sử dụng: 0 ~ 400 độ C
Kích cỡ đường ống lắp đặt: 50A đến 1500A
Điện áp sử dụng: 24V, 220V, 380V
Tiêu chuẩn IP67
Xuất xứ: Đài Loan, Hàn QUốc, Trung QUốc
Thời gian bảo hành sản phẩm: 12 tháng
Mô tả
Van cổng Dao Điện
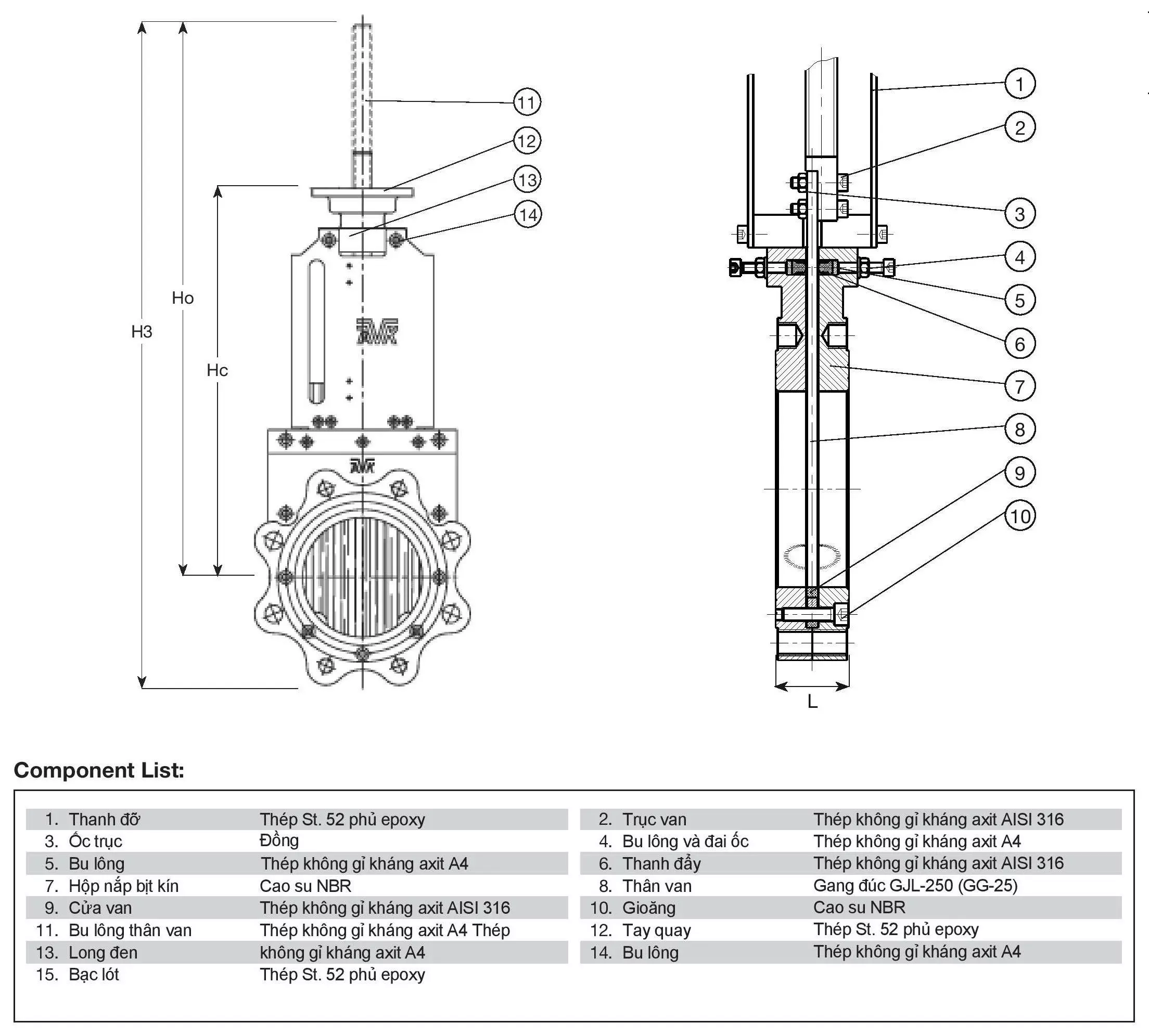
Van cổng dao điện mặt để gắn động cơ điều khiển điện và ty nổi cho xử lý nước thải ở 0°C to +80°C.Van dao AVK kiểu lug/wafer được sử dụng hai chiều với lõi thẳng hoàn toàn. Với đệm kín bảo vệ và vật liệu chất lượng cao mang lại hiệu suất làm việc tuyệt vời cùng với thời gian hoạt động dài. Van có thể được siết chặt lại trong quá trình làm việc. Van dao AVK cung cấp với tay gạt, ty chìm và tay quay, ty nổi và tay quay, động cơ điều khiển khí nén, bích đỉnh ISO để gắn động cơ điều khiển hoặc van dao gắn động cơ điều khiển điện.

Thông số 
* Cấu tạo
– Cửa, trục, thanh đẩy: Thép không gỉ AISI 316
– Thân, mặt bích đỉnh: Gang dẻo GGG-40
– Mặt tựa: Cao su NBR
– Mặt bích: EN1092

Đặc điểm:
– Hai chiều, có thể lắp đặt độc lập với hướng của dòng chảy
– Lõi thẳng nhằm không giảm dòng chảy
– Đáy phẳng nhằm ngăn chặn các chất bẩn lắng đọng
– Không có các hốc lỗ trong thân van do đó không có rủi ro tắc nghẽn
– Thanh đẩy bảo vệ hộp nắp bịt kín giúp phân phối tải trọng đồng đều khi siết chặt lại
– Đệm kín một mảnh hình chữ U bằng NBR giữa các bộ phận của thân van giúp tăng dung sai trong lớp phủ và vỏ đúc. Nó được gia cố bởi lõi thép để bảo vệ nó khỏi bị hư hỏng trong quá trình hoạt động
– Trục van với vấu kẹp để gắn thiết bị ngắt mạch nhỏ và cảm biến cảm ứng
– Trục và cửa van được gắn chắc chắn với ốc trục tự khóa
-Tích hợp hỗ trợ trong thân van đúc bảo vệ cửa van không bị lệch hướng dưới áp lực
– Thân van bằng gang đúc được sơn epoxy nóng chảy kết dính 150 μ. Lựa chọn bằng thép không gỉ kháng axit hoặc duplex.
– Cửa van, trục van, thanh đẩy, bu lông và đai ốc bằng thép không gỉ kháng axit
– Long đen dưới bu lông bảo vệ lớp sơn phủ
– Thiết kế mỏng và trọng lượng nhẹ
– Van được phân phối với bu lông lỏng để ngăn chặn độ nén không cần thiết của hộp nắp bịt kín trước khi sử dụng, do đó cần siết chặt sau khi lắp đặt
– Van có khả năng tự làm sạch, các tạp chất sẽ bị đẩy ra cửa van khi mở van. Để tăng cường bảo vệ hộp nắp bịt kín có thể cung cấp thêm thiết bị cạo
– Đạt chứng nhận theo 97/23/CE European Pressure Equipment Directive
– Lựa chọn áp lực cao
Ứng dụng của van dao điện
– Van dao, van xẻng được ứng dụng trong các hệ thống dẫn lưu chất lỏng, hệ thống dẫn dầu khí, hóa chất và các hệ thống nồi hơi áp suất.
– Với phần tiết diện hẹp, van dao dễ dàng lắp đặt cho các hệ thống có không gian nhỏ, dễ dàng thao tác và điều khiển hệ thống van bằng tay, điều khiển khí nén hay điện điều khiển.
– Với phần lá chắn bằng inox, van dao phù hợp cho các môi trường khắc nhiệt như chuyền dẫn axit, các loại hóa chất ăn mòn…



Đánh giá Van cổng dao điện